• Hem
  • Vad vi gör
  • Om oss
  • Kontakt
  • Områden
    • Nacka
    • Södermalm
    • Bromma
    • Danderyd
    • Lidingö
    • Stockholms skärgård
  • Svenska
  • English

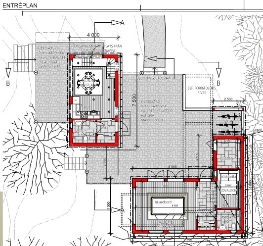
FRISTÅENDE ATTEFALLSHUS SOLLENTUNA

Under de senaste ca 10åren så har Attefallshus – både fristående och som tillbyggnad till huvudbyggnad blivit alltmer populära. Attefallsreglerna har blivit mer generösa vad avser tillåten storlek som då givetvis gjort det ännu mer attraktivt.

Ägarna önskade att bygga ett nytt Attefallshus, komplementbyggnad och en del ombyggnader på huvudbyggnaden till denna stora helt sagolika skarpt sluttande Sollentuna tomt ner mot Edsviken

Attefallshuset skulle fungera som ett ungdomshus för sin dotter och eller i framtiden även användas som ett gästhus.

I samband med detta planerades en nytt komplementbyggnad som förråd och hobbyrum. Dessa två nya byggnader placerades högt upp på tomten, väl avskild från huvudbyggnaden med vidunderlig utsikt ner mott vattnet. Samtidigt medförde detta projekt även en hel del markarbeten som nya trappor, gångstråk, planteringar och allmän justering av den branta tomten för att göra det bekvämt att vandra omkring i trädgården – ett sant drömprojekt för oss som både arkitekter och landskapsarkitekter.

BRATT lifestyle architecture
VIKDALSVÄGEN 50 131 52 NACKA STRAND SVERIGE
+46 708 605 707 bratt@brattgroup.com