• Hem
  • Vad vi gör
  • Om oss
  • Kontakt
  • Områden
    • Nacka
    • Södermalm
    • Bromma
    • Danderyd
    • Lidingö
    • Stockholms skärgård
  • Svenska
  • English

NY TRÄDGÅRD SALTSJÖBADEN

Saltsjöbaden är en särdeles lummig, elegant och vacker skärgårdsförort till Stockholm med sin delvis kuperade terräng och vackra hus – både äldre och nya.

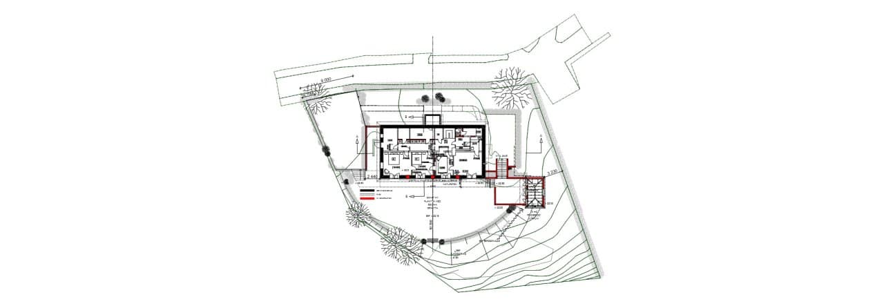
Denna fina högt belägna fastighet med underbar utsikt och trädgård var i behov av uppgradering. Större delen av den plana delen av tomten behövde sänkas med ca 58 cm för att skapa en bättre koppling mellan källarplanet och trädgården utanför.

Sagt och gjort – en mer markerad bågformad yta planerades och den rad av smala mindre källarfönster skall ersättas med fyra stycken nya glasade dubbeldörrar för att ge en mer uppgraderad stolt pampig värdig träsgårdsfasad utåt.

En kompletterande glasad trädgårdspaviljong skall ingå i projektet som är tänkt att användas för socialt umgänge med sin uterumskaraktär och placeras längre ner i den nyskapta terrasserade sluttningen. Trappor, stödmurar och gångstråk i natursten skall förbinda de olika terrasserade ytorna för att då kunna binda ihop de flertal delarna av trädgården på ett mjukt och behagligt sätt .

BRATT lifestyle architecture
VIKDALSVÄGEN 50 131 52 NACKA STRAND SVERIGE
+46 708 605 707 bratt@brattgroup.com